Im Zentrum dieses Projekts steht eine städtebauliche Studie, die sich mit den Herausforderungen von Überschwemmungen in Städten befasst. Angesichts der zunehmenden Häufigkeit solcher Ereignisse entwickelten wir ein realistisches Szenario, das die Risiken und Auswirkungen von Überschwemmungen untersucht.
Unsere umfangreiche Gruppenarbeit fokussierte sich auf Risikofaktoren wie Hangrutschungen und Hochwasserereignisse entlang der Rhône sowie potenzielle Überläufe der Nebenflüsse. Folgendes Video, das aus dieser Analyse hervorging, illustriert die Gefahren.
Basierend auf der Studie identifizierten wir vier potenzielle Standorte für städtebauliche Massnahmen. Sie unterstreicht die Wichtigkeit eines tiefgreifenden Verständnisses von Naturkatastrophen für die Stadtplanung. Sie trägt zur Entwicklung von nachhaltigen, Resilienz-orientierten städtebaulichen Lösungen bei, die sowohl sicher als auch auf die Bedürfnisse der städtischen Bevölkerung zugeschnitten sind.
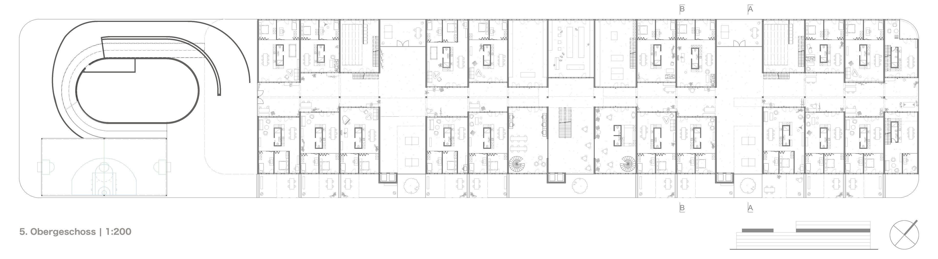
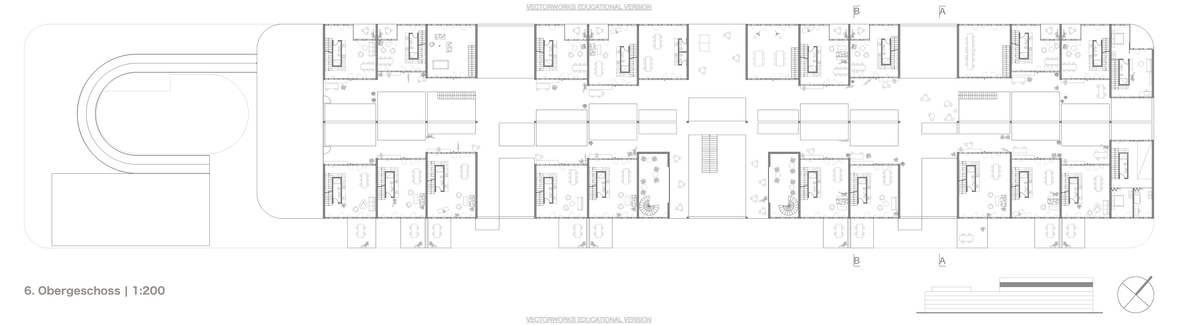
Im Rahmen unseres städtebaulichen Projekts haben wir uns auf den Perimeter 3 konzentriert, wo auf dem 2019 fertiggestellten Parkhauses neue Wohnungen geplant ist. Das Ziel dieses Projekts ist es, nachhaltigen und energieeffizienten Wohnraum zu entwickeln, der vor allem für Mitarbeiter und Studierende des nahegelegenen Spitals gedacht ist. Dieses Gebiet, das auch das Spital, das Reha-Zentrum, das Parkhaus und den im Aufbau befindlichen Campus der Fachhochschule Westschweiz umfasst, verzeichnet eine zunehmende Nachfrage nach Wohnraum. Diese Entwicklung reflektiert die wachsende Bedeutung und Erweiterung der regionalen Infrastruktur, wobei das Projekt darauf abzielt, auf diese Bedürfnisse einzugehen, allerdings unter Berücksichtigung der Herausforderungen und Grenzen, die mit derartigen städtebaulichen Vorhaben einhergehen.
Ein markantes Merkmal unseres Projekts ist das durchdachte Klimatisierungs- und Belüftungskonzept, dessen Prinzipien sich im Grundriss der Wohnungen widerspiegeln. Dieses System, entworfen, um eine natürliche Belüftung und Beheizung zu ermöglichen, nutzt ein innovatives Zwischenklima zwischen den Wohnungen. Während im Sommer die Sonneneinstrahlung zur Kühlung beiträgt, hilft im Winter das Zwischenklima bei der Wärmeerzeugung. Der Grundriss ist so konzipiert, dass er diese Belüftungstechnik unterstützt, wobei das Ziel einer natürlichen Luftzirkulation und eines angenehmen Wohnklimas angestrebt wird, allerdings unter Berücksichtigung der praktischen Grenzen solcher Systeme.
Die Umnutzung des Parkhauses als Grundlage für die neue Wohnsiedlung stellt einen Schritt in Richtung effizienterer Raumnutzung und ökologischer Nachhaltigkeit dar. Das Projekt, bietet einen Einblick in mögliche Wege zur Entwicklung urbaner Wohnkonzepte der Zukunft. Es zielt darauf ab, natürliche Ressourcen zu nutzen, um den Energieverbrauch zu senken und ein umweltfreundliches Wohnen zu unterstützen, wobei es gleichzeitig die Herausforderungen und Grenzen solcher Ansätze anerkennt.
Eine Zusammenarbeit mit Alain Rychener
Eine Zusammenarbeit mit Alain Rychener











